Add Content...
The above image is compressed for quick download.
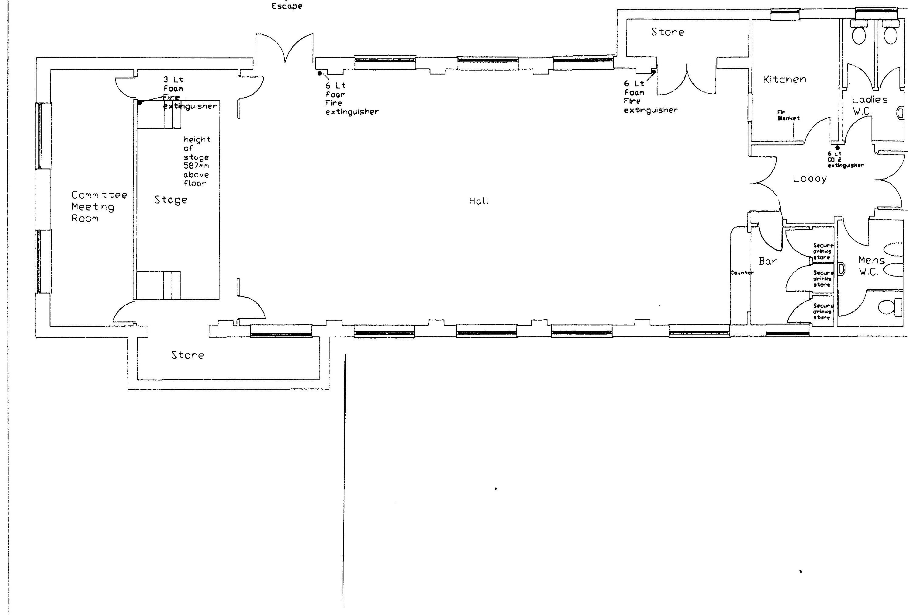
Download a larger (426K JPG) version of the floor plan. (RIGHT Click here - choose Save Target As)